
Desenvolupament d’un nou espai verd a Callús
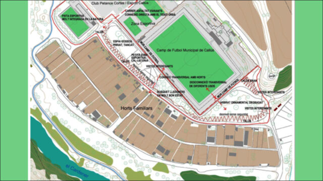
La Diputació de Barcelona ha presentat a l’Ajuntament de Callús un informe per a la creació d’un nou espai verd a la zona de la Font, situat en una parcel·la d’1,1 hectàrees actualment sense urbanitzar, adjacents al camp de futbol. Aquest estudi es centra en l’anàlisi de diverses opcions d’actuació i proporciona orientacions per a la presa de decisions, tant per a tècnics com per a representants polítics del municipi.
L’informe destaca la importància de millorar l’accessibilitat i la seguretat, així com de promoure la sostenibilitat i la resiliència. Les propostes inclouen la creació de petits espais de jocs i reunió, la consolidació dels camins d’accés i la millora de la vegetació existent, així com l’estabilització de desnivells. Dins l’estudi, s’han delimitat quatre zones d’intervenció, amb una valoració econòmica per a cadascuna, que permetrà a l’Ajuntament realitzar les obres en fases a mesura que la disponibilitat pressupostària ho permeti.
Aquesta iniciativa busca establir un espai agradable per al gaudi de la natura, amb un mínim d’intervenció per preservar el potencial natural de la parcel·la, que és fàcilment accessible i ofereix vistes panoràmiques. L’estudi de la Diputació de Barcelona alineat amb els Objectius de Desenvolupament Sostenible (ODS), en particular el número 3 (Salut i benestar) i el número 11 (Ciutats i comunitats sostenibles), reflecteix un compromís amb la sostenibilitat i el benestar social.
- Et Recomanem -
